Project scope
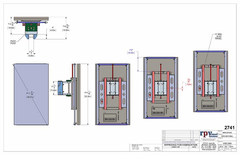
ESPN’s new DC2 Facility in Bristol Connecticut utilizes RPV’s design expertise to solve for a unique demand on one set to have in effect 3 different looks. The octopus as the challenge became known allowed for 8 – 60” PrimeView PRV670MPDP Panel mounts to be reconfigured where each of the 4 arms allows to be aligned in a flat array or up to a 90-degree angle to the back frame. Each of the monitors can also be attenuated right to left. The difference of each view truly results in 3 unique and very different looks with the same visual structure.






You must be logged in to post a comment.