Project Overview

Sometimes we are tasked with completing multiple projects within a single job, and this case study highlights one of those instances. This project consists of 7 different structures completed for the Illumina Rubicon gallery. 

drawing of large curved LED array

Concept

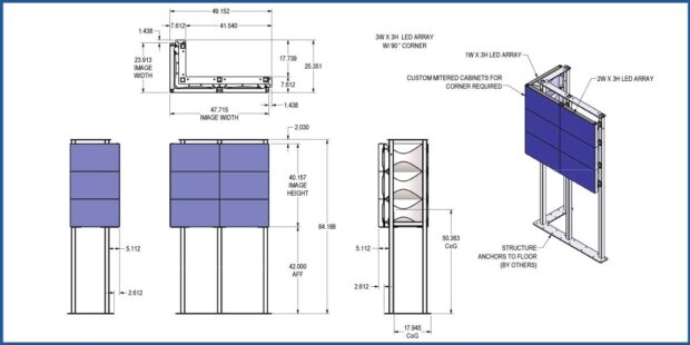
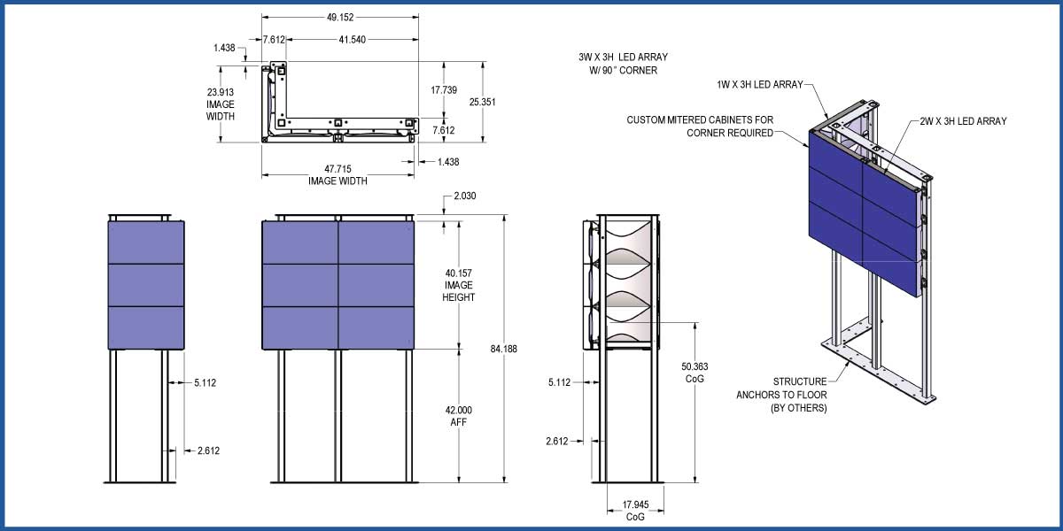
This job consists of multiple arrays with different mount solutions. Take a look at all seven of the drawings created for this project.

In Progress

We’ve captured each step of this project in these pictures. Take a look at the in-progress photos from this job.

In progress photo of custom mount structure (photo 4)
Corporate office with impressive large LED display mounted structure by RPV

Finished Product

 Check out the video and the pictures of the final installations. Thank you, AVISPL, Waveguide, Planar for your amazing support and partnership on this project!