Challenge
The Canon team wanted to create a meeting space that could support large gatherings in addition to small one-on-one meetings by incorporating a movable flat panel wall to span across the room. rp Visual Solutions (RPV) worked with AV Consultant, Smith + Andersen, and AV Integrator, Applied Electronics, to design and fabricate a solution for an architecturally integrated video wall, mounted on a motorized track system, for the showroom space.
Solutions
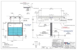
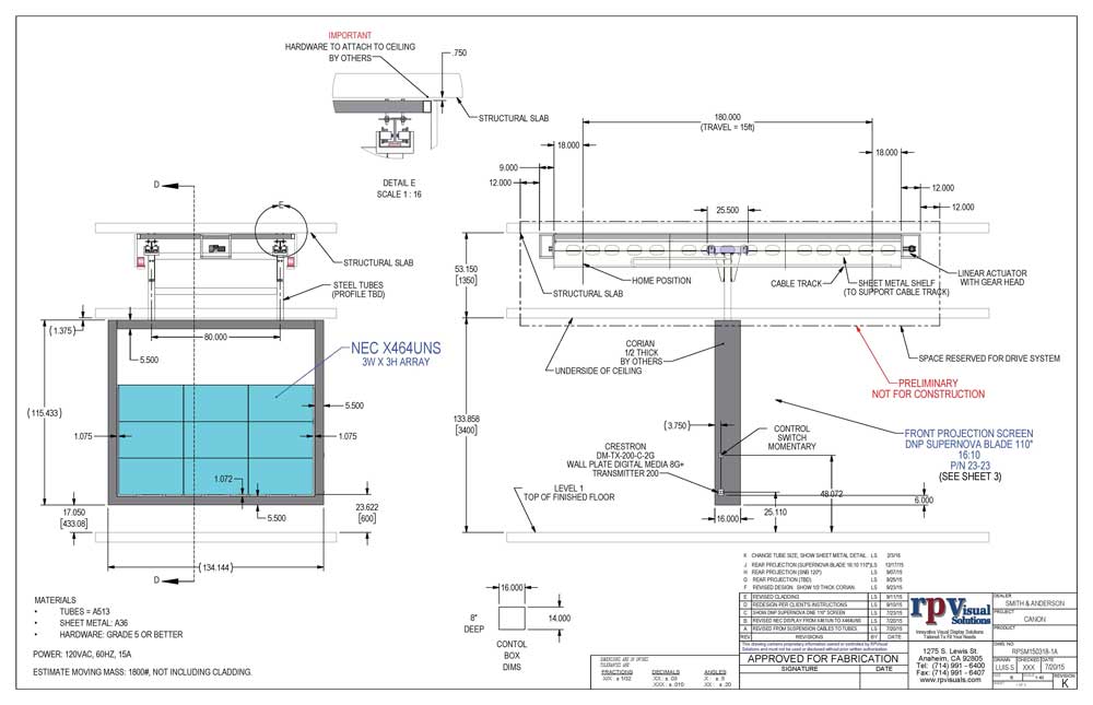
RPV designed, engineered, and fabricated a custom suspended, motorized track system supporting a dual-sided display with a 3×3, 46″ NEC flat-panel array. The other side is dnp’s Ambient Light Rejecting (ALR) Supernova Blade screen.
The 3×3 custom flat-panel array is engineered with available service access to support the NEC panels. Suspended from the ceiling, the mount moves along a track 15 feet in length allowing Canon to reconfigure the space based on both audience size and content being presented. The custom-engineered mount allows a tight seam tolerance between the NEC panels and minimal outer clearance creating a clean, architecturally integrated display.
In order to add a second display without increasing the thickness of the structure and also maintain contrast in a brightly lit room, RPV provided a dnp Supernova Blade, an optically structured Ambient Light Rejecting (ALR) screen. Supernova’s microscopic structure creates up to 7 times the contrast compared to standard diffusion front projection screen. The Blade is the only frameless ALR screen allowing a tech-savvy aesthetic while maintaining a total thickness of 3mm.
Project Partners
AV Consultant: Smith + Andersen
AV Integrator: Applied Electronics
Flat Panel Manufacturer: NEC Displays
ALR Projection Screen Manufacturer: dnp Screens




You must be logged in to post a comment.